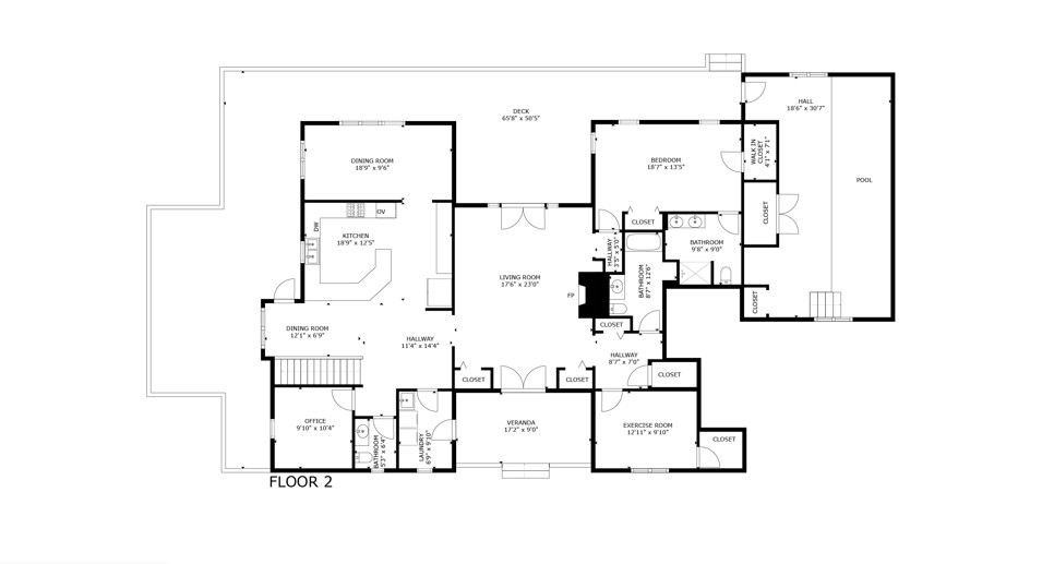
Overlooking the Bitterroot Valley, 763 South Sunset Bench Road is a 3-bedroom home with bonus rooms and 3.5 bathrooms, offering space, comfort, and functionality. The main level features a double-door entry opening to the living room, highlighted by a fireplace with a stone surround and direct access to the expansive wraparound deck. French doors extend the living space outdoors, creating an ideal setting for dining and entertaining while taking in the valley views. Just off the deck, a distinctive pool room offers year-round recreational potential and awaits your personal touch. The kitchen features a large peninsula, double ovens, a double refrigerator, a dishwasher, and an electric glass cooktop, and conveniently connects to the mudroom and laundry area at the front of the home. The spacious primary suite includes two closets, a three-quarter bath, and dual vanities. A guest bedroom with a walk-in closet is served by a full bath across the hallway, and an additional office space adjacent to the kitchen provides flexibility for remote work or hobbies. The daylight walk-out lower level offers two additional family areas, a dedicated work or hobby space with a walk-in closet, and a second three-quarter bathroom—ideal for media space, projects, or multi-generational living. Outside, a patio connects the home to a detached two-car garage with lean-tos for covered storage, while a carport adds additional parking near the house. The property also features perimeter fencing, fruit trees, a gated driveway, and irrigation from the ditch. With open space, panoramic views, and paved county road access, this property offers the perfect blend of rural tranquility and convenient access to Stevensville and the Bitterroot Valley.
Listing Details
- UseSingleFamilyResidence
- Square Feet3488.00
- Bedrooms3
- Year Built1990
- Lot Size6.0000
- Half Baths1
- 3/4 Baths1
- Baths4
- Garage1
- UseSingleFamilyResidence
- Square Feet3488.00
- Bedrooms3
- Year Built1990
- Lot Size6.0000
- Half Baths1
- 3/4 Baths1
- Baths4
- Garage1



































