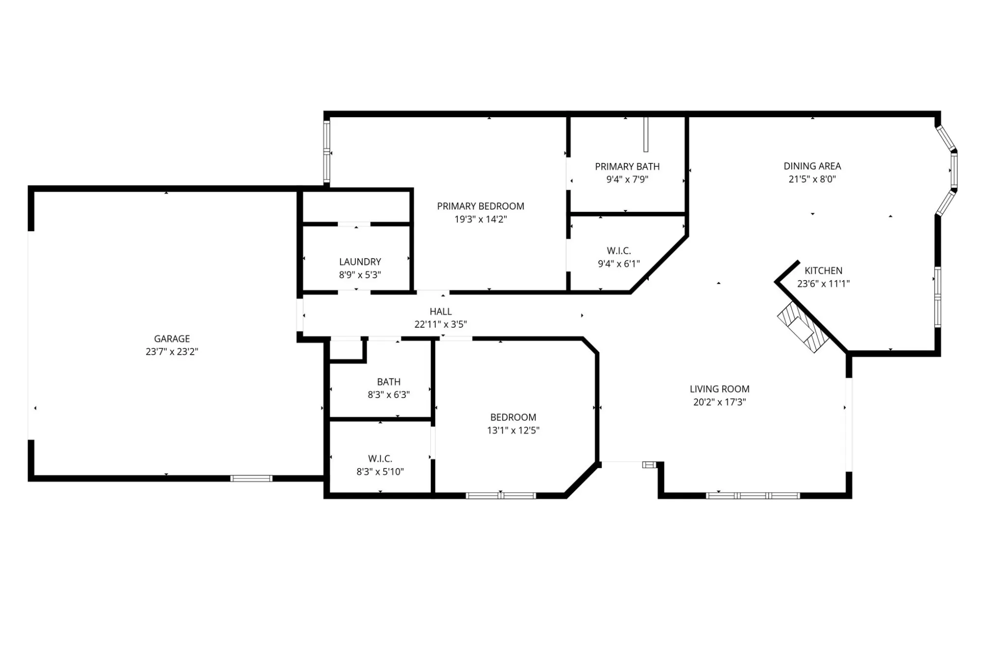
Welcome to effortless Montana living in this single-level condo nestled alongside one of Helena’s golf courses. With 1,685 square feet of thoughtfully designed space, this 2-bedroom, 2-bath home offers comfort and the ease of low-maintenance living. Step inside to discover all-new flooring throughout and a bright, open layout perfect for both relaxing and entertaining. The spacious living area flows seamlessly into the dining space and kitchen with brand new applicances. Located in beautiful Helena, you’ll enjoy close proximity to mountain trails, outdoor recreation, and the charm of Montana’s capital city—all while benefiting from the convenience of single-level, easy-care condo living. New roof to be added in the Spring of 2026.
Listing Details
- UseCondominium
- Square Feet1685.00
- Bedrooms2
- Year Built2000
- Baths2
- Garage1
- UseCondominium
- Square Feet1685.00
- Bedrooms2
- Year Built2000
- Baths2
- Garage1





























