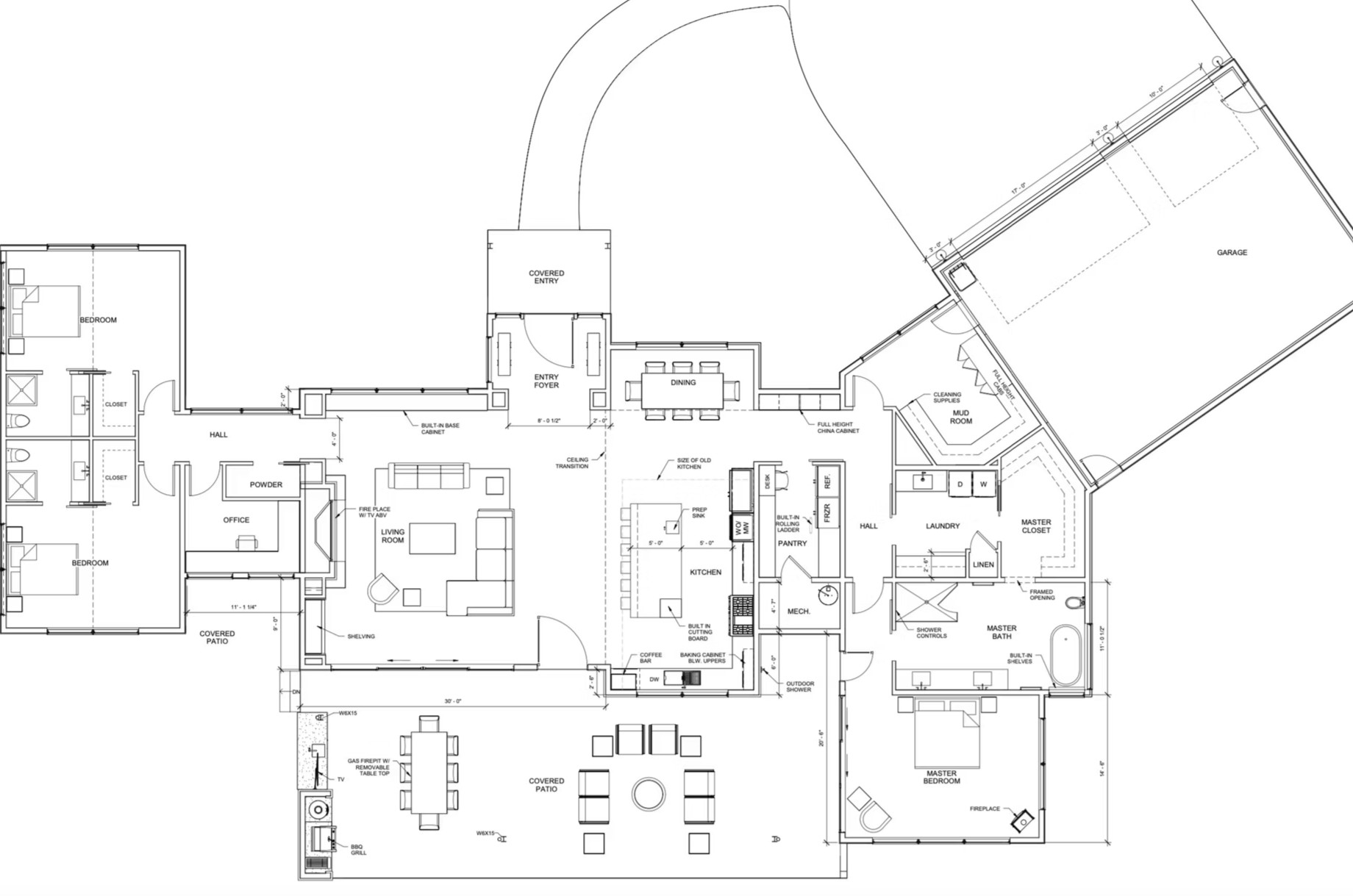
Experience refined Montana living with this to-be-built modern masterpiece in one of the area’s premier subdivisions. Perfectly positioned just outside of town with serene country privacy and neighborhood walking access to the Clark Fork River. This home will showcase modern architecture, exceptional craftsmanship, and high-end finishes throughout its 3,500+ square feet. Bright open floor plan with tall ceilings, abundant natural light, and a spacious primary suite. Ample outdoor living with a generous covered patio overlooking a large common area. Complete with a three-car garage and a nearly two thirds of an acre lot, this home blends style, space, and location perfectly. Fork River. Designed around mountain-modern architecture by AIA/NCARB professionals, Freestone reflects refined Montana living that is both modern and rooted in place. Freestone offers early buyers the opportunity to secure premium positions in a development built for long-term value and limited availability. With curated design standards, high-end lifestyle integration, and unmatched infrastructure advantages, Freestone stands apart from standard Missoula inventory and represents a long-term investment in beauty, privacy, and lasting quality.
Listing Details
- UseSingleFamilyResidence
- WaterfrontRiverFront,WaterAccess
- Square Feet3578.00
- Bedrooms3
- Year Built2026
- Lot Size0.6200
- Half Baths1
- 3/4 Baths2
- Baths4
- Garage1
- UseSingleFamilyResidence
- WaterfrontRiverFront,WaterAccess
- Square Feet3578.00
- Bedrooms3
- Year Built2026
- Lot Size0.6200
- Half Baths1
- 3/4 Baths2
- Baths4
- Garage1























