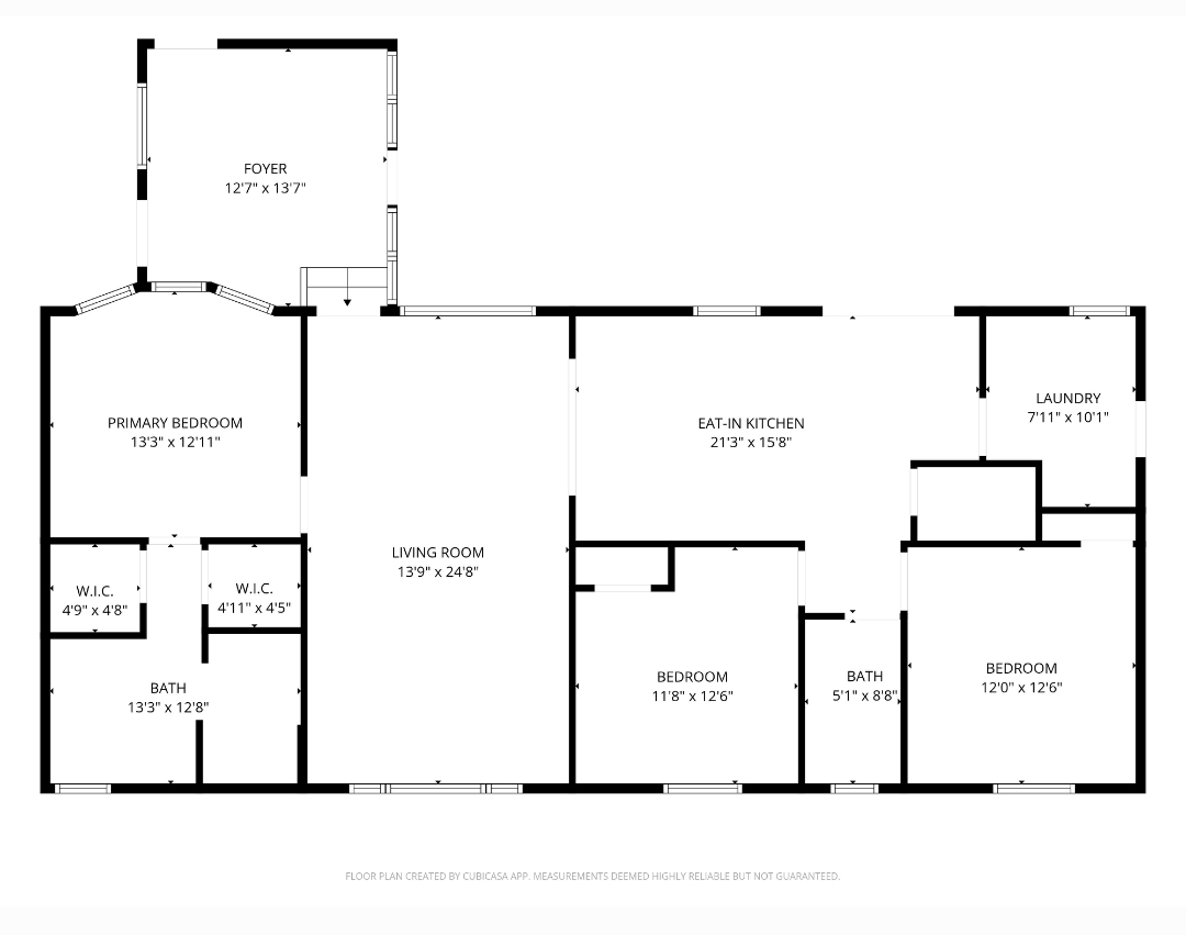
Highwood Mobile Home Park welcomes your PET! (See park rules for details) This doublewide has been well cared for. Three large bedrooms. The primary has 2 walk-in closets and an attached bathroom w/walk-in shower. The garden tub was removed & replaced with even more storage. Of course the kitchen has a skylight! Nice, updated vinyl plank flooring in the kitchen and the countertops were recently replaced with custom laminate. They have even added an island that can me moved wherever you need it. It is an excellent height for gift wrapping or chopping veggies. You'll enjoy the 3-Season "sunroom" with attached storage area. There is even a smaller covered deck for your grill, just outside the sliding doors, near the dining area AND another +/- 10x12 shed. This home is located in the Highwood Mobile Home Park and Management must approve your application, prior to purchase. Furnace and Central Air have been regularly serviced by AT Klemens.
Listing Details
- UseOther
- Square Feet1620.00
- Bedrooms3
- Year Built1999
- 3/4 Baths1
- Baths2
- Zoningmobile home park
- UseOther
- Square Feet1620.00
- Bedrooms3
- Year Built1999
- 3/4 Baths1
- Baths2
- Zoningmobile home park
