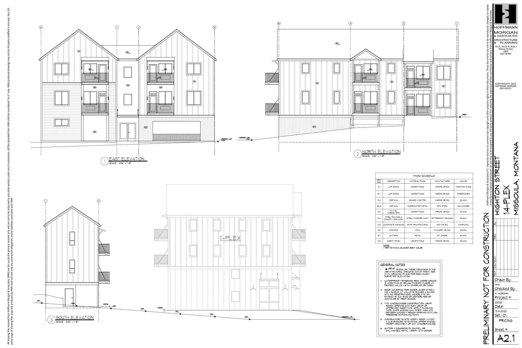
Embark on an exceptional development venture in East Missoula with this 0.409 acre property, strategically positioned directly off the bustling Highway 200 E. This promising parcel not only includes meticulously crafted plans for a 25-unit apartment or condo complex but also boasts commercial mixed-use potential, offering a versatile canvas for transformative development. From purchase date, within months, this project would be ready to break ground. Additionally, East Missoula is on the brink of a potential new neighborhood center housing project, further enhancing the appeal of this property. Benefit from the added advantage of convenient proximity to East Missoula's amenities and the serene allure of the nearby Clark Fork River, enhancing the quality of life for potential residents. With its strategic location, thoughtfully designed plans, and an imminent construction timeline, this property represents an unparalleled investment prospect, perfectly poised to capitalize on the burgeoning real estate opportunities in East Missoula.
Listing Details
- UseMultiFamily
- Lot Size0.4090
- ZoningNeighborhood Center
- UseMultiFamily
- Lot Size0.4090
- ZoningNeighborhood Center
























































