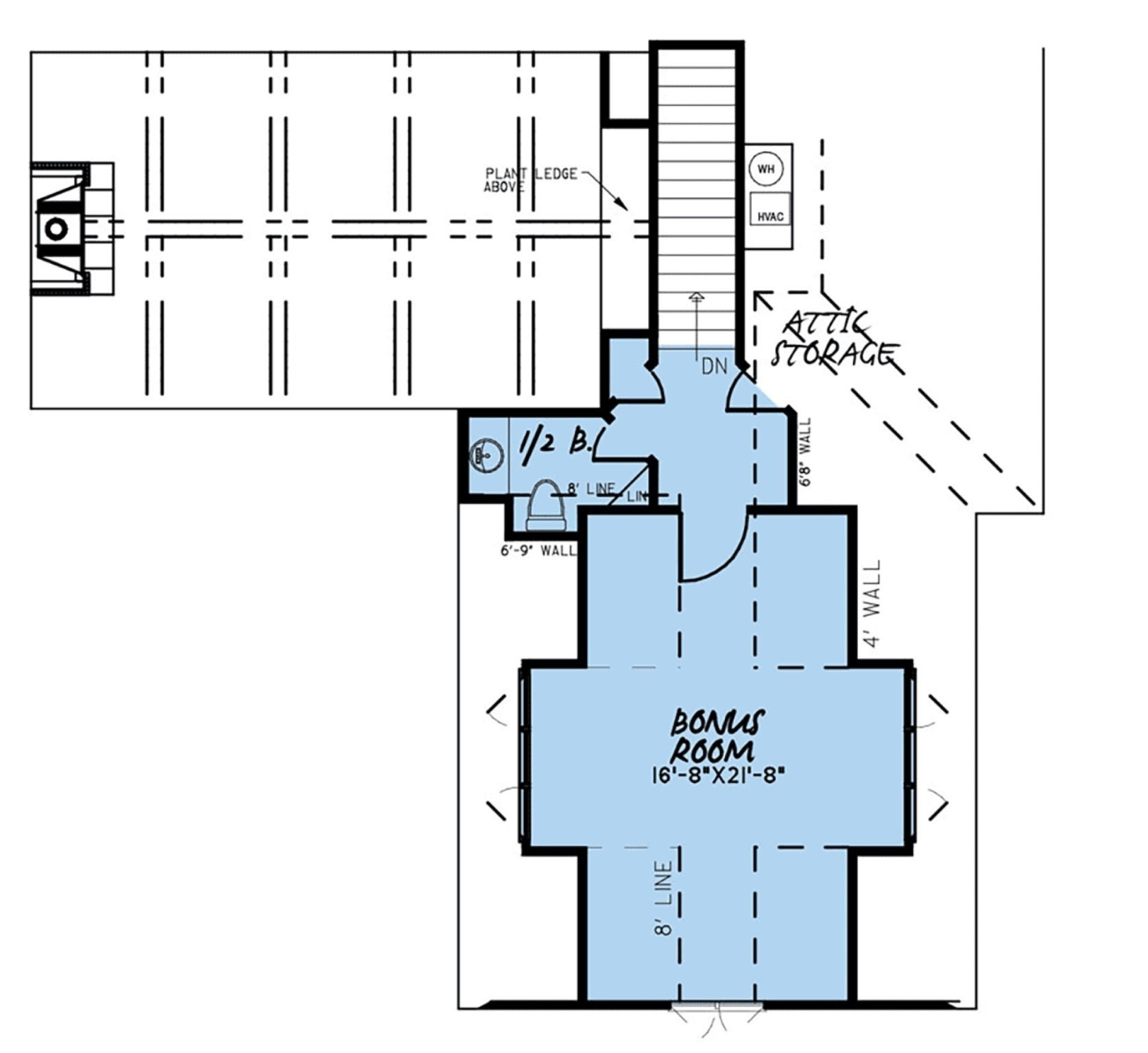
This modern 4 bedroom home is to be built by Elk Mountain Construction. Situated on a large 1/3 of and acre lot with mature trees. The versatile and adaptable floor plan offers 1900 square feet on the main level, and a 414 square foot bonus room above the garage which could easily be converted to a 5th bedroom. The great room’s vaulted ceiling and generously sized kitchen island make for a spacious and open floor plan. The large glass patio door to the covered outdoor living space creates a seamless connection between the indoors and outdoors.An inviting fireplace adds warmth and coziness to this home. The 3-car split attached garages provide ample space (902 sq ft) for vehicles and recreational storage. Close to the 2-acre park, it is ideally located. The Invermere subdivision allows for shops and RV parking pads to accommodate Montana lifestyles. Photos are renderings only. Finishes to be chosen by the buyer. Certain finishes may impact price.
Listing Details
- UseSingleFamilyResidence
- Square Feet2314.00
- Bedrooms4
- Year Built2024
- Lot Size0.3530
- Half Baths1
- Baths3
- Garage1





















